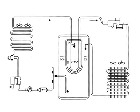
SPLS貯液、積液、省能熱交換器
產品分類:制冷配件
品牌:SIKELAN
產品簡介:
貯液及積液省能熱交換器采用液分離器,貯液器和熱交換器組合設計,能有效調節系統液體流量功能,更能發揮冷凍能力,保證壓縮機的最佳運行。
特征:
節省用電,將舊式低壓液分離因滴水而浪費的冷度和電力完全回收到高壓貯液器體內而增強冷度,又節省用電。增強冷凍效果,因高壓貯液器和低壓液分離器內之冷媒,進行熱交換而產生過冷卻和適當過熱,使循環中的冷媒(焓)值增加,在蒸發時能發揮到最大冷凍能力。避免液壓縮,確保沒有液體回流到壓縮器中引起液體壓縮。不滴水免保溫。省工省料省空間。增加價值感,提升整機美觀,沒有滴水潤滑,發霉發臭,污染周圍環境等現象。

